5名様まで宿泊可能 四万十市下田の一棟貸し宿 明の宿 akari - Shimanto
In a land where ancient spirits dance beneath neon skies, your journey begins. Imagine waking in a serene ryokan in Kyoto, the scent of tatami rising as cherry blossoms drift past your window. From the majestic peak of Mount Fuji to the bustling streets of Osaka, Japan offers a tapestry of wonders waiting to be unraveled. Secure your sanctuary in this island nation where tradition meets tomorrow. Do not let this dream fade away; reserve your stay now and embrace the harmony of the rising sun today.
5名様まで宿泊可能 四万十市下田の一棟貸し宿 明の宿 akari
WiFi
Parking
We speak
JA
Check availability
WiFi
Parking
We speak
JA
Situated in Shimanto, 1.3 km from Tosa Seinan Daikibo Park Wampaku Hiroba and 8.6 km from Ichijo Shrine, 5名様まで宿泊可能 四万十市下田の一棟貸し宿 明の宿 akari offers air conditioning. This property offers access to a balcony, free private parking and free WiFi. The property is non-smoking and is9.4 km from Shimanto Yasunamiundo Koen Park.
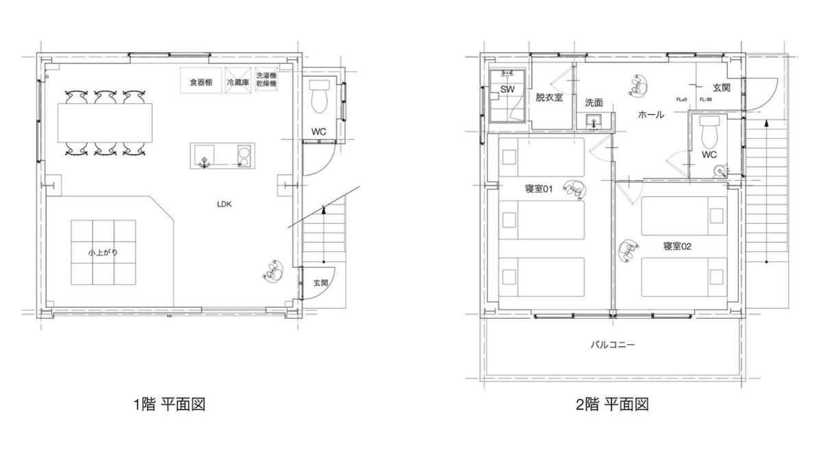
The holiday home has 1 bedroom, 1 bathroom, bed linen, towels, a flat-screen TV, a dining area, a fully equipped kitchen, and a terrace with city views. For added privacy, the accommodation features a private entrance.
Shimanto Historical Museum is 10 km from the holiday home, while Tamematsu Park is 10 km from the property. Kochi Ryoma Airport is 120 km away.
The hotel day starts from hour 16:00 and ends at 10:00.
This property will not accommodate hen, stag or similar parties.
Managed by a private host
License number: 高知県指令7高幡保第680号
Parking on site
Free parking
WiFi
WiFi available in all areas
Air conditioning
Internet services
Private parking
Non-smoking throughout
Parking
Free WiFi
Two-Bedroom House. Featuring a private entrance, this air-conditioned holiday home comprises a kitchen, 1 bedroom and 1 bathroom with a shower and a bidet. Meals can be prepared in the kitchen, which comes with a refrigerator, kitchenware, a microwave and an electric kettle. This holiday home features a washing machine, tatami, a flat-screen TV and a terrace. The unit offers 2 beds.
